In this electrical room sizing example, learn how to size the room and position the equipment to meet NEC requirements.

A quick history of the NEC
NFPA 70: National Electrical Code (NEC) was first developed in 1897 and now has more than 50 editions as it adapts and advances to the ever-changing electrical industry. While the NEC is updated every three years, the adopted code for each state may differ. Some states, like Arizona, do not adopt a statewide code, which allows each municipality to adopt and amend the NEC as it sees fit. Other states, such as California, adopt the NEC with state-specific amendments. New York State adopted the 2017 NEC, but New York City enforces the 2008 NEC with city-specific amendments. The current version of the NEC is from 2023; however, as of February 2025, only 17 states have adopted the 2023 NEC; 21 states still enforce the 2020 NEC, six states enforce the 2017 NEC and two states enforce the 2008 NEC. Several states are in the process of updating the version of the NEC to be enforced in their state.
When designing a building or system, NEC articles must be referenced to ensure the design meets the requirements of the code. Rooms housing electrical equipment have requirements that must be met to ensure safe working conditions for operation and maintenance. While the NEC does not explicitly define an “electrical room,” it does outline requirements for the working space around electrical equipment typically found in rooms that contain dedicated electrical equipment — we will refer to these as electrical rooms.

Electrical room sizing is crucial to ensure safety, functionality and compliance with standards. NEC Article 110 defines the criteria by which the minimum size of the room is determined. For systems of 1,000 volts (V) nominal or less, working space is defined in Article 110.26(A) as the space around each piece of electrical equipment for maintaining safety for workers and occupants. The article defines the required depth, height and width of the space based on the electrical sizing and voltage of the equipment.
Table 110.26(A)(1) lists the minimum clear distance between pieces of electrical equipment based on the nominal voltage to ground and exposed live parts. Article 110.26(E) defines the dedicated space needed about equipment. Dedicated spaces are zones above the electrical equipment reserved for future access and protection from other building systems. Article 110.26(C) also defines requirements for entrance to and egress from working spaces.
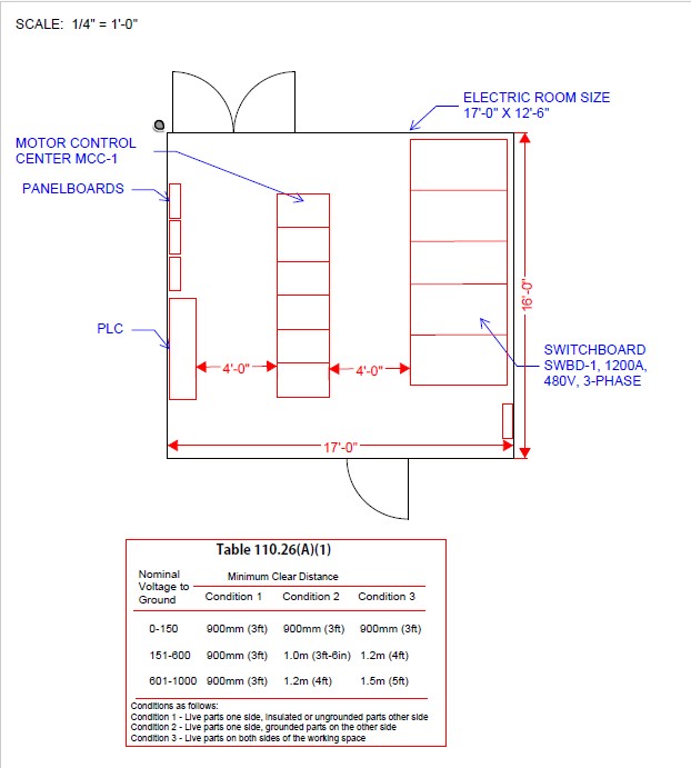
As shown in Figure 5, a 1,200 ampere (A), 480 V, three-phase switchboard; 480 V motor control center (MCC); programmable logic controller panel; and various panelboards are in a dedicated electrical room. Equipment cut sheets were obtained from the vendor based on the loads each piece of equipment serves.

Using Article 110.26(C) and because the equipment is rated at 1,200 A, an entrance to and egress from the required working space is required that is not less than 24 inches wide and 6.5 feet high at each end of the working space. A door is therefore required at each end of the electrical room (Figure 5). The working clearance between the switchboard and MCC needs to be 4 feet based on Table 110.26(A)(1) Condition 3 at 480 V. The dedicated space above the equipment will be maintained and free of any piping, ducts, leak protection apparatus or other equipment foreign to the electrical installation. The size of the room, based on the equipment and NEC requirements prior to 2023, was approximately 17×16 feet.
Other code requirements, such as illumination and emergency lighting, must also be followed. Coordination with other trades, including architectural and mechanical, must also be conducted to ensure ventilation, heating, air conditioning and egress requirements are met.
How the 2023 edition of the NEC changed electrical room working spaces
Changes to the 2023 NEC added requirements for working spaces, including access to and egress from working spaces around electrical equipment. With this change, open equipment doors need to be accounted for in the width of working spaces such that if an equipment door is open, it cannot impede access to and egress from working spaces.

Figure 6 shows the electrical room sizing according to the 2023 NEC, where 4 feet are required for the 480 V electrical distribution equipment (live parts) along the walls and 6 feet, 1.5 inches are required for the equipment in the center of the room. The electrical room size increased to 21×16 feet to account for equipment doors being open and a minimum access path between the equipment doors of 2 feet for an unimpeded egress path.
When working with a limited footprint, additional space will be required for the electrical room, which will need to be coordinated with the building layout.